🌿 Luxury, Exclusivity, and Nature in Almería’s Finest Golf Resort
Discover these stunning new-build villas, located in the exclusive Desert Gold urbanization within Desert Springs Resort, the most luxurious and prestigious golf resort in Almería. With a Mediterranean-inspired design, high-end finishes, and an unbeatable natural setting, these properties present a unique opportunity whether you are looking for a permanent residence or an investment.
🏠 Property Features
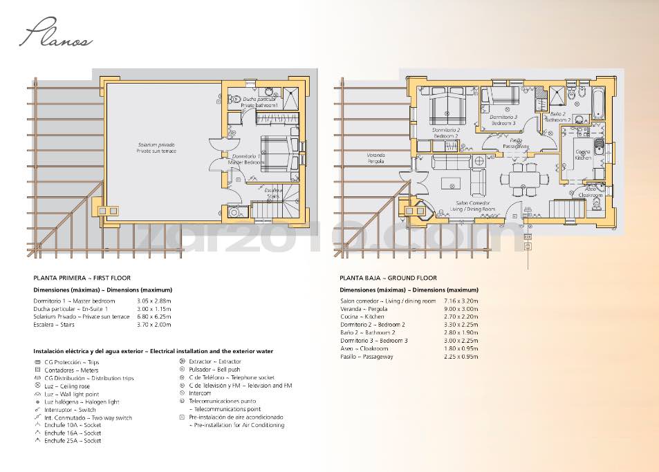
Built area: 111 m², spread over two floors
Plots starting from: 55 m²
Bedrooms: 3
Bathrooms: 2
Private garden: Yes
Communal swimming pool: Yes
Private parking space: Included in the price
Private terrace: 42 m² with panoramic views
🔹 Interior Layout
🌿 Ground Floor: Spacious and Bright Living Areas
Upon entering the villa, you are welcomed by a spacious and bright open-plan living and dining area, designed to maximize natural light and the connection with the outdoors. Large windows allow sunlight to flood the space throughout the day and provide direct access to the porch, terrace, and private garden, perfect for enjoying the Mediterranean climate.
The modern open-plan kitchen is seamlessly integrated into the living area, offering both functionality and style. It comes with high-quality cabinetry, durable countertops, and a layout designed for convenience.
This floor also includes two bedrooms with built-in wardrobes:
✅ A double bedroom, spacious and overlooking the garden.
✅ A single bedroom, ideal as a children’s room, office, or walk-in closet.
A fully fitted bathroom with a walk-in shower serves this floor, featuring modern fixtures and premium materials.
🏡 Upper Floor: Privacy and Comfort
On the upper floor, you will find the master bedroom, a spacious and bright suite with two built-in wardrobes, ensuring ample storage space.
This bedroom comes with a private en-suite bathroom, featuring a walk-in shower, modern sanitary fittings, and high-end finishes.
From the master bedroom, you have access to a stunning 42 m² private terrace, offering panoramic views of the communal areas, swimming pool, and surrounding natural landscape. This space is perfect for relaxing, enjoying the sunsets, or creating a stylish chill-out area.
✨ High-Quality Finishes & Features
🏡 Customization Options
Homes are delivered fully finished or semi-finished, with the option to personalize finishes from an exclusive materials catalog, choosing between a modern or a more traditional style.
Fully equipped kitchen, including state-of-the-art appliances.
Installed air conditioning system (hot/cold).
Double-glazed aluminum windows, providing excellent thermal and acoustic insulation.
High-quality carpentry and porcelain tile flooring throughout.
Luxury bathrooms with premium brand fittings and modern fixtures.
Private parking space included in the price.
🌿 Desert Springs Resort: A Paradise for Golf and Nature Lovers
Located in the municipality of Cuevas del Almanzora, but just minutes away from Vera Pueblo, Desert Springs Resortis more than just a residential complex – it is an exclusive lifestyle.
🏌️♂️ 18-Hole Par 72 Golf Course
Desert Springs is Europe’s only desert golf course, inspired by the famous layouts of Arizona and California. It is surrounded by 600,000+ desert plants and natural lakes, offering an exceptional golfing experience. The course has received multiple awards and hosts international tournaments.
💎 Premium Resort Amenities
Golf Clubhouse & Fine Dining Restaurant
Swimming pools & tropical gardens
Sports center with gym, tennis, and paddle courts
Nature trails and cycling routes
24/7 Private Security
📍 Prime Location
Ideally positioned 7.5 km from the beaches of Palomares and Vera, and less than 5 km from the center of Vera Pueblo, where you will find all essential services: supermarkets, restaurants, shops, medical centers, and schools.
📍 Key Distances from Desert Springs, Cuevas del Almanzora
✈️ Nearby Airports:
-
Almería: 92 km (~1 hour)
-
Murcia: 140 km (~1 hour 30 min)
-
Alicante: 200 km (~2 hours)
🚆 Train Stations:
-
Almería: 95 km (~1 hour 10 min)
-
Murcia (El Carmen): 140 km (~1 hour 30 min)
🏥 Medical Centers & Hospitals:
-
Vera Health Center: 4 km (~7 min)
-
La Inmaculada Hospital (Huércal-Overa): 30 km (~25 min)
🏫 Education:
-
Public Schools & Institutes in Vera:
-
CEIP Reyes Católicos – 4 km (~7 min)
-
IES El Palmeral – 5 km (~8 min)
-
-
Private & Bilingual School:
-
Valdeserra School – 18 km (~20 min)
-
⛳ Nearby Golf Courses:
-
Desert Springs Golf Club: Within the resort
-
Marina Golf Mojácar: 15 km (~20 min)
-
Valle del Este Golf Resort: 12 km (~15 min)
-
Aguilón Golf: 35 km (~35 min)
🚄 Future AVE High-Speed Train Station in Vera: A Major Advantage
The upcoming AVE station in Vera, located just 14 km from the property, will significantly improve connectivitywith major cities like Madrid and Barcelona, adding great value to the area and making it even more attractive for residents and investors alike.
💎 A Unique Opportunity in an Exclusive Setting
Investing in a villa at Desert Gold – Desert Springs Resort means choosing quality of life, exclusivity, and long-term value. Whether as a permanent home, holiday retreat, or investment property, these residences offer an unparalleled environment in Almería’s stunning coastal region.

